該建筑名為“巖石”,建筑面積2300平方英尺(701平方米),立面的木材被涂上黑漆。房子建在山坡上,上方是一座森林覆蓋的小山和一條碎石車道,下面是一片平坦的草地。
起居室由細長的柱子支撐著,下面形成了停車空間。
順應山坡的地形,建筑屋頂是平的,并不感覺突兀。
這個項目最初的想法是與這座山融合在一起,在整個場地中若隱若現。住宅固定在山坡上的同時也做了部分懸挑。
從山坡下進入住宅,并向上到達二層。住宅的一側由細長的圓柱支撐。
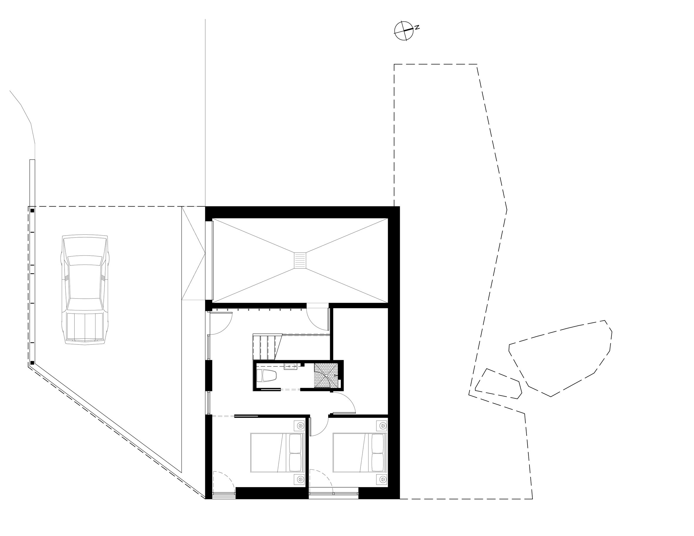
經過懸挑空間,通過前門可以到達兩間客臥和一間浴室,一間儲藏室,以及通往主要生活區域的木質樓梯。
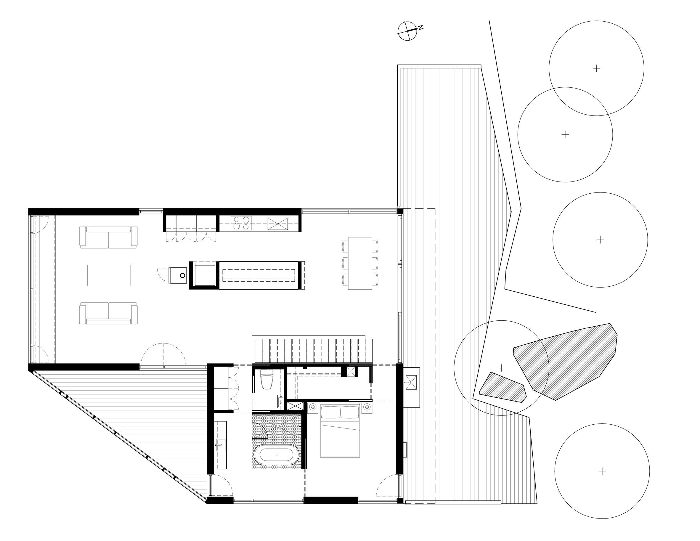
二樓的大部分空間是開放式的客廳和餐廳,兩者被一個擁有島式操作臺的廚房分隔開來。落地玻璃窗圍繞著餐廳的角落,餐廳可以步入連接著山坡的一個木質露臺。
從客廳可以進入到另一個三角形的露臺,彌補了L形建筑平面的缺口
一間擁有浴室和儲物間的主臥室也位于頂層。主浴室由白色瓷磚鋪貼,包含一個浴缸和一個玻璃淋浴房。白色的墻壁,拋光的混凝土地板和木質的天花板形成了整個室內的風格。
一層平面圖
二層平面圖


服務熱線:15327288876




